Přízemní rodinný dům / Bungalov s vnitřním bazénem, rozsáhlou zahradou, jezírkem a venkovní saunou
419817
K Paterům
Kostelec nad Labem
Druh
Dům
Plocha
290
m²
Podlaží
1
Kolaudace
Neuvedeno
Popis
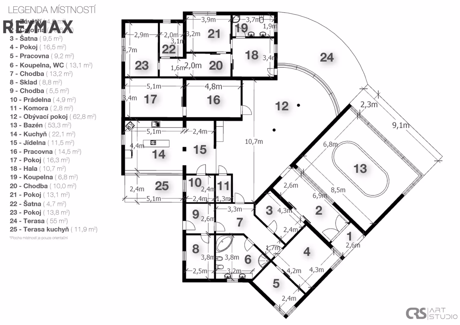
Nabízím výjimečný přízemní rodinný dům / bungalov o dispozici 5+kk a dalšími dvěma pracovnami, vnitřním bazénem, rozlehlou zahradou s venkovní saunou a samostatnou garáží.
V klidné obci Jiřice u Kostelce nad Labem.
Tento dům poskytuje naprosté soukromí, klid a komfortní bydlení v souladu s Feng Shui, s cílem dosáhnout harmonie a vyvážení životního prostoru.
Základní informace:
• Podlahová plocha: 290 m² /bez podkslepení a teras/
• Celková užitná plocha: cca 354 m²
• Pozemek: 4 300 m² (zahrada, jezírko, sauna, zázemí, garáž, vlastní příjezdová cesta)
• Dispozice: 5+kk + 2 pracovny + 2 koupelny + 2 šatny + prádelna + sklad + úložné prostory
• Samostatná garáž /cca 75 m2/
• technická místnost v suterénu
Dispoziční řešení a vybavení domu:
• Prostorný obývací pokoj (62,8 m²) s velkými prosklenými plochami, krbem a vstupem na krytou terasu, přirozené srdce domu
• Designová kuchyně s ostrůvkem, dostatkem úložného prostoru a vstupem na zahradu
• Navazující jídelna, ideální pro rodinné večeře i návštěvy
• Tři ložnice, pokoj pro hosty a dvě oddělené pracovny pro práci z domova
• Dvě koupelny, dvě šatny, komora, prádelna, sklad
• Krytý vnitřní bazén s odpočívárnou a přístupem na zahradu
• Podlahové topení v koupelnách a kuchyni, krb v obývacím pokoji, ústřední vytápění z tepelného čerpadla
Zahrada a exteriér:
• Rozsáhlý a udržovaný pozemek o velikosti 4300 m²
• Přírodní koupací jezírko s čistou vodou a zelení kolem
• Stylová venkovní sauna umístěná v klidné části zahrady
• Prostor pro relaxaci, grilování, koupání
• Terasa (55 m²) – ideální pro posezení s výhledem do zeleně
• Parkování v nadstandardně prostorné garáži
Hlavní výhody nemovitosti:
• Dům ve velmi dobrém stavu – ihned obyvatelný
• Kvalitní dřevěné podlahy, stropy i obložení
• Dobře promyšlené úložné prostory i funkční rozvržení místností podle Feng Shui
• Energeticky efektivní řešení /PENB „B“/
• Tepelné čerpadlo země / voda napojeno na 100 m vrty
• dostatek přirozeného světla v celém domě
Lokalita a občanská vybavenost:
• Klidná slepá ulice, vlastní příjezdová cesta – absolutní soukromí a bezpečné prostředí
• Obec Jiřice u Kostelce nad Labem – v dojezdové vzdálenosti do Prahy (cca 20 minut na Černý Most)
• V blízkosti příroda, lesy, Labe, cyklostezky, možnost sportovního vyžití
• Veškerá občanská vybavenost v nedalekém Kostelci nad Labem nebo Neratovicích
Pro více informací nebo termínu prohlídku mě neváhejte kontaktovat Prodávající si vyhrazuje právo vybrat kupujícího na základě jím zvolených kritérií.
Vybavenost
Zdroj vody
Telekomunikace
Typ odpadu
Elektřina
230 V, 400 V
Rozvod plynu
Zdroj topení
Doprava
Energetická náročnost
B
Poloha nemovitosti
Virtuální prohlídka
Mohlo by se vám líbit
Naše další nabídky
Objevte naše exkluzivní nemovitosti.
Přihlaste se k odběru newsletteru
Získejte pravidelné aktuality a užitečné tipy








































