Nový slunný byt 2+kk 56 m² s lodžií 10,6 m², velkorysé parkovací stání a nadstandartní sklep
424693
Poděbradská
Praha
Dispozice
2 + kk
Plocha
56
m²
Podlaží
3
.
Kolaudace
2025
Popis
Byt je ideální volbou pro ty, kteří hledají moderní městské bydlení — domov, kde můžete po práci vypnout, ale přitom zůstat v dosahu města.
Exkluzivně nabízíme k prodeji nový byt 2+kk o podlahové ploše 56 m² s prostornou lodžií 10,6 m², situovanou do zeleného srdce nově vznikající rezidenční čtvrti Tesla Hloubětín.
Byt se nachází ve 2. patře (3. NP) a spojuje vše, co si od současného bydlení přejete — funkční dispozici, elegantní styl a pocit bezpečí.
KAŽDÝ DETAIL JE PROMYŠLENÝ
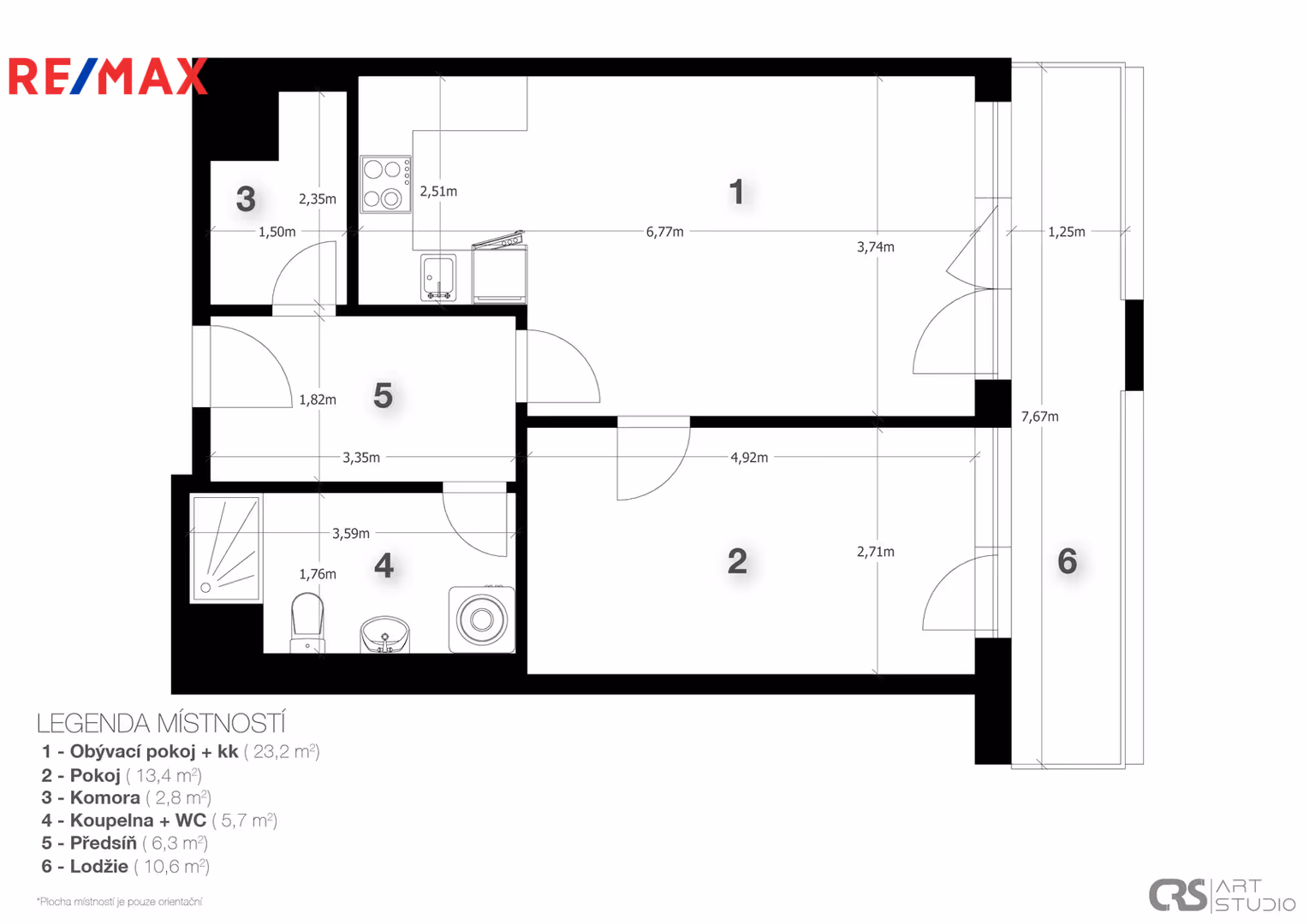
Dominantou bytu je obývací pokoj s kuchyňským koutem o velikosti 23,2 m² s pohodlným vstupem do lodžie.
Velkoformátová okna sahající od stropu po zem zajištují světlo po celý den a propojují byt s klidným vnitroblokem plným zeleně.
Rovněž z ložnice (13,4 m²) je přímý vstup na lodžii, která je dostatečně velká na vytvoření zelené stěny nebo mini zahrádky.
Moderní kuchyňská linka je vybavena značkovými spotřebiči Electrolux a Liebherr – myčka, mikrovlnná trouba, sklokeramická deska i kombinovaná lednice s mrazákem se postará o to, abyste se mohli bez starostí nastěhovat.
Součástí vstupní haly je velká vestavěná skříň, která má dostatek prostoru pro uskladnění vašich věcí.
Praktickou součástí bytu je komora o velikosti (2,8 m²).
Koupelna se sprchou a s WC o velikosti (5,7 m²) je prostorná a připravená na instalaci pračky a sušičky a dalšího příslušenství.
K bytu náleží velkorysé parkovací stání vhodné i pro SUV za cenu 800.000,- Kč
Hned za parkovacím stání se nachází nadstandardně velký sklep o výměře 8,7 m² za cenu 300.000,- Kč.
Parkovací stání a sklep není součástí ceny bytu.
Projekt TESLA Hloubětín vzniká na místě původního areálu Tesly a proměňuje se v jednu z nejzelenějších moderních čtvrtí v Praze.
Najdete zde rozsáhlé vnitrobloky, parky, pěší zóny i dětská hřiště.
V přízemí domů postupně vznikají obchody, kavárny a služby.
Nechybí školka, fitness zóny a příjemné cesty pro běhání či jízdu na kole.
SKVĚLÁ DOPRAVNÍ DOSTUPNOST
• Metro B – Hloubětín je jen pár minut pěšky
• Byt je přímo u tramvajové zastávky Nademlejnská
• Rychlé napojení na Pražský okruh a centrum města
Tento byt si vás získá hned při první návštěvě.
Těším se na vás osobně na prohlídce.
Vybavenost
Zdroj vody
Telekomunikace
Internet
Typ odpadu
kanalizace
Elektřina
Rozvod plynu
plynovod
Zdroj topení
Doprava
Energetická náročnost
B
Poloha nemovitosti
Virtuální prohlídka
Mohlo by se vám líbit
Naše další nabídky
Objevte naše exkluzivní nemovitosti.
Přihlaste se k odběru newsletteru
Získejte pravidelné aktuality a užitečné tipy









































